Availability and prices
Property
Description
Location:
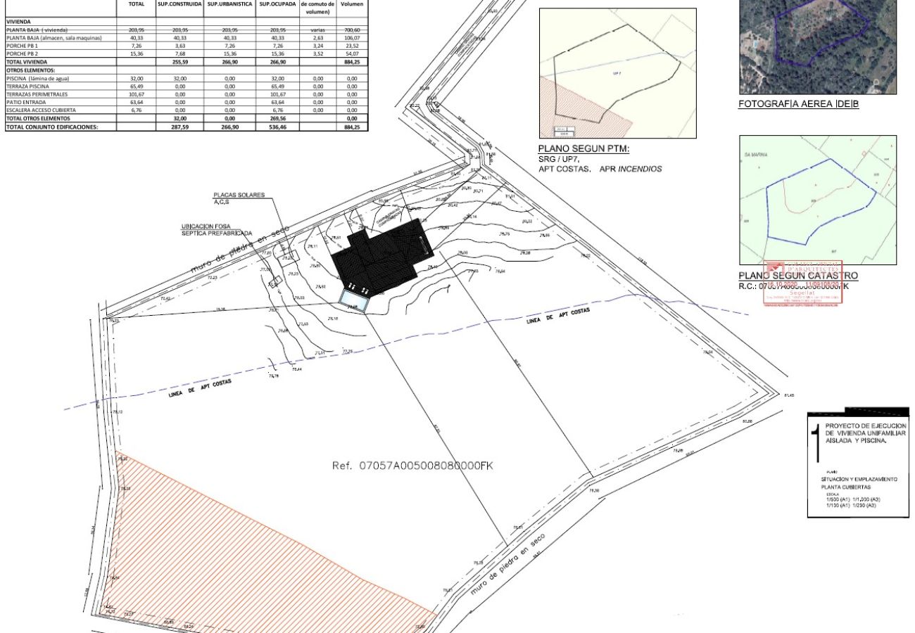
Just around 500 m from the picturesque Cala S'Almunia, this exceptional finca plot is located in an absolutely tranquil environment in the southeast of Mallorca, near Santanyí. Due to the current building regulations, it is the first buildable finca plot after the coastline – a privilege, as new buildings must now be at least 500 m from the sea.
Object Description:
For the spacious plot of land, a building permit is already available - so the starting signal for your new dream house can be given immediately. The surroundings are a paradise for water sports enthusiasts, hiking friends and nature lovers: Swimming, diving, snorkelling, jogging, climbing or extensive coastal walks - everything practically starts at your doorstep. From Cala S'Almunia, a spectacular coastal path leads over the lonely Cala Marmols to Cap Ses Salines, with the possibility of continuing to walk to Colonia Sant Jordi. Only 150 m away is the famous bathing bay Caló des Moro, about 3 km further the Cala Llombards with a charming beach restaurant and chill-out area.
The Property:
On the site, you can expect your own forest with tall trees, two natural torrents (river valleys), a spacious area in the valley region, as well as rock formations. Ideal for individual leisure and sports areas: whether climbing wall, boules lane, jogging paths, tennis or football field.
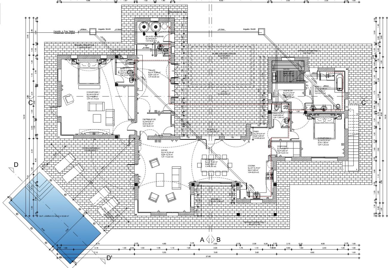
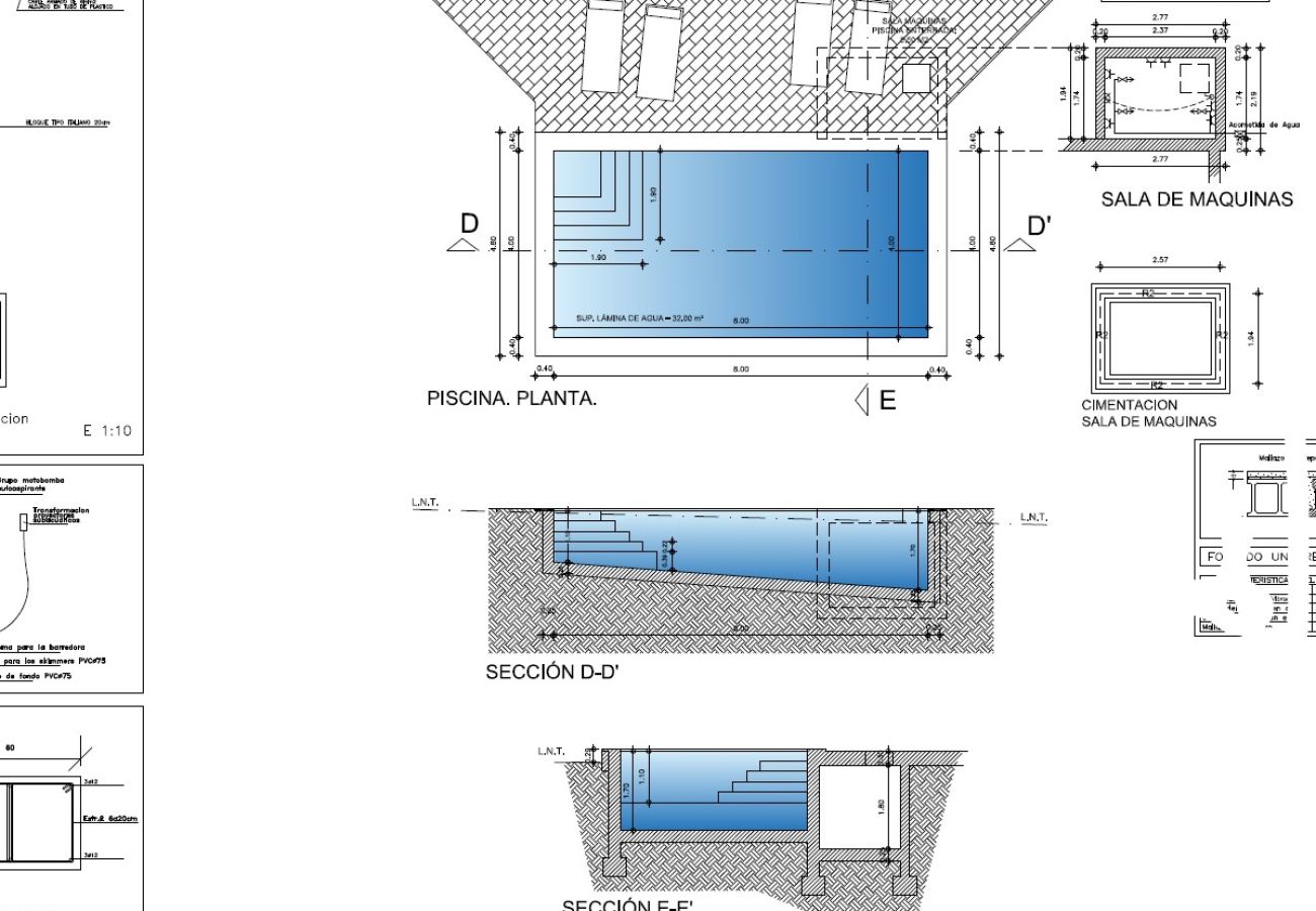
Thanks to the L-shaped design of the house, protected outdoor areas are created for every season. The pool area is sunny on the southwest side - perfect for year-round sunshine hours.
Privacy is incomparable: Access is via a private road, exclusively for residents. The surroundings consist of well-maintained villa properties, in a location that has proven to be stable and growing in value for years.
Infrastructure:
- Water connection already available
- Electricity connection prepared (quote available)
- Potential sea view from approx. 10.50 m height (1st floor)
- Garden can be laid out already before construction begins
A unique plot of land in an exclusive, quiet location – ideal for those who appreciate the sea, nature and privacy and wish to start building immediately.
Just around 500 m from the picturesque Cala S'Almunia, this exceptional finca plot is located in an absolutely tranquil environment in the southeast of Mallorca, near Santanyí. Due to the current building regulations, it is the first buildable finca plot after the coastline – a privilege, as new buildings must now be at least 500 m from the sea.
Object Description:
For the spacious plot of land, a building permit is already available - so the starting signal for your new dream house can be given immediately. The surroundings are a paradise for water sports enthusiasts, hiking friends and nature lovers: Swimming, diving, snorkelling, jogging, climbing or extensive coastal walks - everything practically starts at your doorstep. From Cala S'Almunia, a spectacular coastal path leads over the lonely Cala Marmols to Cap Ses Salines, with the possibility of continuing to walk to Colonia Sant Jordi. Only 150 m away is the famous bathing bay Caló des Moro, about 3 km further the Cala Llombards with a charming beach restaurant and chill-out area.
The Property:
On the site, you can expect your own forest with tall trees, two natural torrents (river valleys), a spacious area in the valley region, as well as rock formations. Ideal for individual leisure and sports areas: whether climbing wall, boules lane, jogging paths, tennis or football field.
Thanks to the L-shaped design of the house, protected outdoor areas are created for every season. The pool area is sunny on the southwest side - perfect for year-round sunshine hours.
Privacy is incomparable: Access is via a private road, exclusively for residents. The surroundings consist of well-maintained villa properties, in a location that has proven to be stable and growing in value for years.
Infrastructure:
- Water connection already available
- Electricity connection prepared (quote available)
- Potential sea view from approx. 10.50 m height (1st floor)
- Garden can be laid out already before construction begins
A unique plot of land in an exclusive, quiet location – ideal for those who appreciate the sea, nature and privacy and wish to start building immediately.
Map and distances
€ 1,250,000